このページを印刷する
- 価格
-
590万円
- 間取
-
2
| 所在地 | 秋田県北秋田市脇神字高村岱 |
|---|---|
| 交通 |
|
| 築年月 | 1980年12月(築45年) | 新築/中古 | 中古 |
|---|---|---|---|
| 面積 | 72.18m²(21.83坪) | 計測方式 | |
| バルコニー | 向き | ||
| 建物階数 | 地上1階 | 所在階 | |
| 部屋番号/区画番号 | --- | 総戸数/総区画数 | --- |
| 建物構造 | 木造 | ||
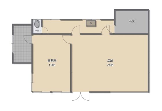
| 間取内容 | 24帖 12帖 店舗24帖・事務所12帖 |
||
| 駐車場 | 空有 | 取引態様 | 一般 |
| 引渡/入居時期 | 相談 | 現況 | 空家 |
| 地目 | 雑種地 | 用途地域 | 無指定 |
| 都市計画 | 非線引き区域 | 地勢 | 平坦 |
| 土地面積 | 1,125m² | 土地面積計測方式 | 公簿 |
| セットバック | 無 | セットバック面積 | |
| 建ぺい率 | 70% | 容積率 | 200% |
| 土地権利 | 所有権 | 接道状況 | |
| 接道方向1 | 北 | 接道間口1 | 33.2m |
| 接道種別1 | 公道 | 接道幅員1 | 7.8m |
| 位置指定道路1 | |||
| 接道方向2 | 東 | 接道間口2 | 30.5m |
| 接道種別2 | 私道 | 接道幅員2 | 5m |
| 位置指定道路2 | |||
| 国土法届出 | 不要 | ||
| 周辺環境 | 周辺環境1 [ショッピング施設] いとく鷹巣南店まで2,310m 周辺環境2 [コンビニ] ローソン北秋田住吉町店まで2,512m 周辺環境3 [コンビニ] セブンイレブン北秋田鷹巣店まで3,195m 周辺環境4 [販売店] ハッピー・ドラッグ北秋田鷹巣店まで2,202m 周辺環境5 [小学校] 北秋田市立清鷹小学校まで1,178m 周辺環境6 [中学校] 北秋田市立鷹巣中学校まで4,000m 周辺環境7 [高 校] 秋田県立秋田北鷹高校まで2,854m |
||
| 設備・条件 |
トイレ 駐車場3台分以上 /22条指定区域内/敷地内に残置物あり、売主にて撤去後お引渡しとなります。
|
||
| 物件カテゴリー | |||
| 自社物 | 自社物 | 状態 | 売出中 |
| 物件番号 | 0080 | ||
| 情報登録日 | 2025年6月2日 | 情報更新日 | 2025年6月2日 |
約340坪の事業用敷地になります。大きい窓のある店舗は、外観を引き立て、通行人の興味を引く重要な要素です。店内が見えることで安心感や開放感を演出でき、集客力向上に繋がります。
物件掲載内容と現況に相違がある場合は現況を優先といたします。
物件周辺マップ
Loading...
ご注意
- 物件によっては正確な位置を示していない場合がございます。
- 現況が表示された内容と異なる場合は現況優先といたします。
- 表示されてる地図はGoogle社より提供されてるデータに基づいたものであり、表示内容についての責任は負いかねます。









